1717 183rd Street Ct SWSpanaway, WA 98387
Listing courtesy of Brandon Hjelseth of Keller Williams Rty Tacoma




Mortgage Calculator
Monthly Payment (Est.)
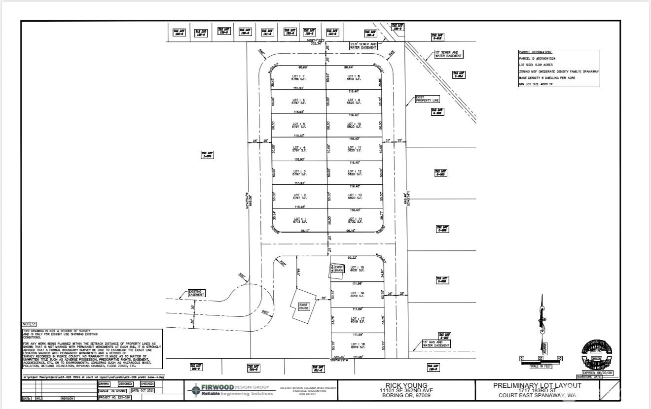
$8,669Rare opportunity for builders and developers to capitalize on just shy of 6 flat, usable acres in a private and serene setting. Zoned NMSF, this property comes with preliminary engineering in place & water rights secure for a thoughtfully designed 18-lot subdivision—offering a strong head start for your next project. Existing neighborhoods built all around the property. Maximize the potential by developing and building across all 18 lots while also adding value to the existing 3,070 sq ft home—ideal for renovation, resale, or holding as an income-producing asset during development. With its combination of scale, usability, and forward planning already underway, this is a standout investment opportunity in a sought-after location.
| 5 hours ago | Listing updated with changes from the MLS® | |
| 23 hours ago | Listing first seen on site |
Listing courtesy of Brandon Hjelseth of Keller Williams Rty Tacoma
Listing information is provided by Participants of the Northwest MLS. IDX information is provided exclusively for personal, non-commercial use, and may not be used for any purpose other than to identify prospective properties consumers may be interested in purchasing. Information is deemed reliable but not guaranteed. Copyright 2026, Northwest MLS.
All data is obtained from various sources and may not have been verified by the broker or MLS Grid. Supplied open house information is subject to change without notice. All information should be independently reviewed and verified for accuracy. Properties may or may not be listed by the office/agent presenting the information.
Last checked: 2026-04-24 10:16 AM PDT